+45 71713104
info@jæm.dk

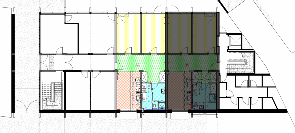
Møllergade 56C – Kl.

Møllergade 56C – Kl.

Specifikationer

  • 91 m2
  • 3-værelses lejlighed
  • Udgang mod gården og trappeopgang
  • Husdyr tilladt
  • Svane køkken
  • Sort granitbordplade
  • Ovn – Bosch Serie 2
  • Mikroovn – Bosch Serie 2
  • Induktionskogeplade – Bosch Serie 4
  • Køle-/fryseskab – Bosch Serie 2
  • Opvaskemaskine – Bosch Serie 4
  • Vaskemaskine – Bosch Serie 4
  • Tørretumbler – Bosch Serie 4
  • Armatur – Quooker, som levere koldt, varmt og kogende vand

Pris: 10.996 kr/md

Billeder fra lejligheden

Plantegning

Plantegninger og skitser er vejledende og der kan forekomme afvigelser

Kontakt os her

Ved at afkrydse dette felt giver du samtykke til, at "Jæm.dk" må behandle, kontrollere og gøre brug af data fra denne tilmeldingsliste, samt fremtidig kontakt. Læs mere under vores side "Persondatapolitik"